Villa singola in vendita

Rivalta Di Torino, Via San Vittore - San Vittore
€ 519.000
7 locali 7 locali
230 Mq 230 Mq
3 bagni 3 bagni

Villa singola in vendita

Rivalta Di Torino, Via San Vittore - San Vittore

Descrizione annuncio

Nel Villaggio San Vittore, all’interno di una tranquilla via privata, proponiamo una villa indipendente già sviluppata su un comodo piano principale di 90 mq calpestabili, oltre al piano superiore e al piano interrato. L’ingresso conduce direttamente in un soggiorno ampio e luminoso, ideale per la zona living e la sala da pranzo. Dal disimpegno si accede alla cucina abitabile, che si apre sul patio verandato, uno spazio sfruttabile tutto l’anno e collegato al piacevole giardino esterno, curato, piantumato e in parte piastrellato.
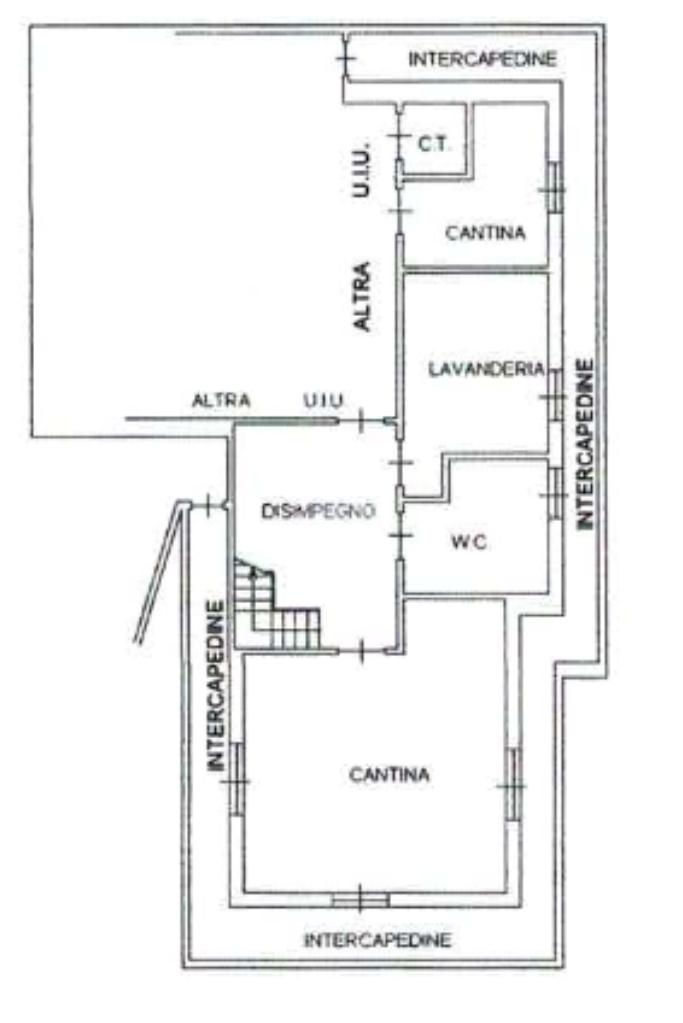
Sempre sul piano principale trovano posto la camera matrimoniale, uno studio e un bagno finestrato, recentemente rinnovato e completo di doccia. Una elegante scala in legno iroko giapponese conduce al piano superiore, dove si sviluppano altre due camere da letto e un secondo bagno, anch’esso finestrato e dotato di doccia. Scendendo al piano interrato si accede alla taverna, alla lavanderia, a un ulteriore bagno, al locale tecnico, alla cantina e al box auto, ampio abbastanza da ospitare fino a tre vetture. A completare il livello inferiore è presente anche un’intercapedine che circonda l’intero piano, garantendo maggiore isolamento e protezione dall’umidità. Se cerchi spazio, privacy e armonia, questa è la soluzione che fa per te: contattaci ora.

Mostra tutto

Nelle vicinanze

Trasporto pubblico Trasporto pubblico
Rivalta (Rivoli)
Rivalta (Rivoli)
100 m
Trasporto pubblico
100 m
Ricariche auto elettriche Ricariche auto elettriche
Villarbasse Rocciavrè | ENELX
2,6 Km
Scuole Scuole
Scuola Primaria "Duchessa Anna D’Aosta"
600 m
Scuola Secondaria di primo grado "Don Milani"
850 m
Nido "Ilaria Alpi e Miran Hrovatin"
1,3 Km
Scuola Primaria "Italo Calvino"
1,5 Km
Scuola Primaria Don Locanetto
1,8 Km
Farmacia Farmacia
Farmacia San Vittore
600 m
Farmacia
910 m
Viscovo
2,8 Km
Ospedali Ospedali
Ospedale di Rivoli
2,4 Km
Ospedale di Rivoli - Emergency
2,4 Km
Centro Regionale Sclerosi Multipla - CRESM
2,8 Km
Ospedale San Luigi
2,8 Km
Ospedale San Luigi - Emergency
2,9 Km
Supermercati Supermercati
CRAI
1,5 Km
Supermercati
2,7 Km
Negozi Negozi
Panetteria "Da Renzo"
650 m
Il minimarket del gusto
670 m
Negozi
830 m
Bar Bar
Ciliegia Drink & Food
920 m
Jolly
1,6 Km
Ristoranti Ristoranti
La Cipolla Caramellata
640 m
Crepérie Allantè
880 m
Rivalta Inforna
940 m
Pizza 33 Giri
1,6 Km
Ristoranti
2,1 Km
Mostra tutto

Caratteristiche

Rif.:
61144239
Piano:
Terra di 2
Totale piani:
2
Box:
1
Terrazzi:
1
Camere da letto:
3
Mostra tutto
Prezzo Prezzo
€ 519.000
Rata mutuo Rata mutuo
€ 2.445 / mese
Spese annue Spese annue
€ 0
Proponi il tuo prezzoProponi il tuo prezzo

Classe Energetica

Questo immobile è esente da classe energetica
Anno di costruzione:
1992
Riscaldamento:
Autonomo
Tipo impianto:
A radiatori
Tipo alimentazione:
Metano

Ti interessa visionare l'immobile?

Fissa un appuntamento  Fissa un appuntamento

Richiedi informazioni

Clicca su Leggi per aprire l'informativa
* Questi campi sono obbligatori

Calcola il tuo mutuo

Semplice e senza impegno
Anticipo

( % )
Mutuo

( % )

pochi semplici passi

inserisci i tuoi dati
Questionario completato
Grazie per aver richiesto un appuntamento senza impegno con un nostro Consulente del Credito e Assicurativo.

Hai inserito correttamente tutti i dati necessari e a breve riceverai una e-mail con un link da convalidare per inviare i tuoi dati.
Affiliato
Studio Centro Storico Sas
Via Bianca Della Valle, 3 10040 Rivalta Di Torino (TO)

Il nostro staff


  • Alice Andronico
    Responsabile

  • Alessio De Luca
    Affiliato

  • Matteo Borla
    Collaboratore

  • Alex Candido
    Collaboratore

  • Alessia Zarbo
    Coordinatrice
Via Bianca Della Valle, 3 10040 Rivalta Di Torino (TO)
Zona: Rivalta e Frazioni
Mostra su mappa
Orari: dal lunedì al venerdì 9.00 - 12.30 ;15.00 - 20.00 il sabato 9.00 - 12.30 ;15.00 - 19.00
Affiliato
Studio Centro Storico Sas
Via Bianca Della Valle, 3 10040 Rivalta Di Torino (TO)

2026 Tecnocasa Franchising S.p.A. - P. IVA 08365160152 - Via Monte Bianco 60/A 20089 Rozzano (MI). Ogni agenzia ha un proprio titolare ed è autonoma. Privacy policy | Policy utilizzo | Cookie policy